Συγκολλημένη κιβωτιοειδής διατομή από τέσσερις γωνιακές διατομές– bbfa
Αυτή είναι μια διατομή που χρησιμοποιείται συχνά για την προσομοίωση κουτιών που σχηματίζονται από χαλύβδινα προφίλ τεσσάρων γωνιακών.
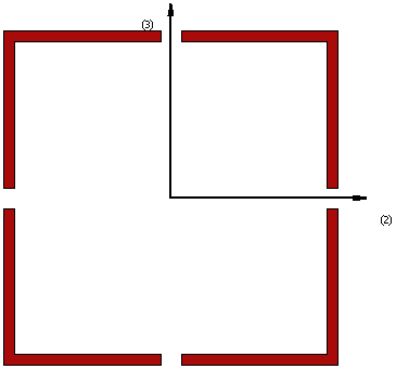
Υλικά και Διαστάσεις
Μόνο ένα υλικό (χάλυβας) πρέπει να οριστεί.
Οι απαιτούμενες διαστάσεις είναι:
- Πλάτος πέλματος. Η προεπιλεγμένη τιμή είναι 0.15 m
- Πάχος πέλματος. Η προεπιλεγμένη τιμή είναι 0.01 m
- Απόσταση μεταξύ πελμάτων. Η προεπιλεγμένη τιμή είναι 0.02 m
Σημείωση: Οι χρήστες μπορούν να χρησιμοποιήσουν αυτήν διατομή κουτιού που αποτελείται από τέσσερις γωνιακές διατομές για την προσομοίωση της ενίσχυσης ενός ορθογωνικού μέλους ΟΣ με διαμήκη προσανατολισμό χάλυβα ή υφασμάτων ΙΟΠ, εφαρμοζόμενων στις δύο απέναντι πλευρές της διατομής. Προκειμένου να το κάνετε αυτό, δημιουργείστε πρώτα ένα μοντέλο υλικού με τις ιδιότητες του ενισχυμένου υλικού και μετά χρησιμοποιείστε το στοιχείο διατομής κουτί που αποτελείται από τέσσερα στοιχεία γωνιακής διατομής που ισούται με αυτό της αρχικής διατομής του στοιχείου, διαστάσεις πάχους πέλματος που αντιστοιχούν στο πάχος του ενισχυμένου στρώματος, και συνδέστε αυτό το ενισχυμένο στοιχείο στους ίδιους κόμβους με τους οποίους συνδέεται το υφιστάμενο στοιχείο.
